Home
Forms Catalogue
Meet the Team &
Contact us
Fact Sheets
Case Studies
Sign up
Login
« Form Category
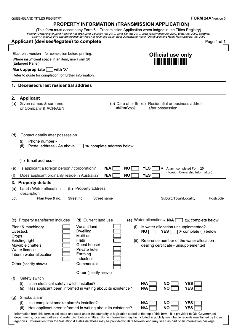
QLDCON-FORM24A
Property Information (Transmission Application)
Find out...
Find out...
Who
FormEvo is for
What
FormEvo offers
Where
you can use FormEvo
Why
you should choose FormEvo
How
we integrate FormEvo with our 'data' partners
VIEW
FULL PREVIEW
Call us on
07340 902835
for further details or sign up now.
SIGN UP NOW
© Cockerel Software Ltd
. All Rights Reserved.
Terms of Use
Privacy & Cookie Policy
Registered in England 03505184. City Gate, St James's Boulevard, Newcastle upon Tyne, NE1 4JE